Logowanie Rejestracja
  • Start
  • Szukaj
  • Użytkownicy
  • Kalendarz
  • Pomoc
  • Nowe posty
Menu
Start Szukaj Użytkownicy Kalendarz Pomoc Nowe posty
PROFESJONALIŚCI POLECAJĄ
KLIMATYZATORY
KLIMATYZATORY
POMPY CIEPŁA
KLIMATYZATORY
KLIMATYZATORY
KLIMATYZATORY
POMPY CIEPŁA
REKUPERATORY
KLIMATYZATORY
KLIMATYZATORY
KLIMATYZATORY
KLIMATYZATORY

Montaż klimatyzacji na poddaszu

1 Odpowiedzi, 1624 Wyświetleń

Patrykmi

  2023-06-24, 06:55:48
Gość
#1
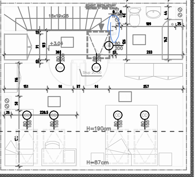
Witam, mam pytanie: 
Mieszkanie ok. 63m2 dwupoziomowe, gdzie zamontować klimatyzacje na poddaszu? (dwa pokoje ze skosami ok. 9 i 13m2 po podłodze, korytarz i schody 7m2)
Myślałem nad agregatem 3,5kW
Wrzucam rzuty
Tak maja zainstalowane sąsiedzi, nie wiem czy to działa bardziej chłodzi parter i schody. Maja jednostki 4,6kW
   

Ja myślałem nad takim rozwiązaniem, czyli naprzeciwko drzwi do pokojów. 
   
  • Odpowiedz

Tytanowy Janusz

  2023-06-24, 08:54:04
Zaawansowany użytkownik
#2
Niekończąca sie opowieść...
Zalecam podwojny multisplit na dwa pomiezczenia, szczegolnie na poddaszu. Split nie sluzy do przetlaczania powietrza miedzy pomieszczeniami. Nawet jakby cos przedmuchał przez drzwi to co gdy ktoś te drzwi chce zamknąć?
  • Odpowiedz

  • Pokaż wersję do druku


Użytkownicy przeglądający ten wątek: 1 gości

Serwis ma na celu zgromadzenie w jednym miejscu firm oraz organizacji z branży HVACR, działających na rynku zarówno polskim jak i poza granicami kraju. Naszą siłą są wyłącznie tematy związane z branżą HVACR oraz unikalna społeczność użytkowników.
NEWSLETTER
Informacje O nas Kontakt Regulamin Reklama Polityka prywatności
Kategorie Artykuły Aktualności Produkty
Działy Klimatyzacja Wentylacja Chłodnictwo Auto - klimatyzacja
Nasze Portale ogrzewnictwo.pl pasywny-budynek.pl
Copyright © 2005-2023 termoclima Sp. z o.o Wszystkie prawa zastrzeżone.
Tryb normalny
Tryb drzewa