Logowanie Rejestracja
  • Start
  • Szukaj
  • Użytkownicy
  • Kalendarz
  • Pomoc
  • Nowe posty
Menu
Start Szukaj Użytkownicy Kalendarz Pomoc Nowe posty
PROFESJONALIŚCI POLECAJĄ
KLIMATYZATORY
KLIMATYZATORY
POMPY CIEPŁA
KLIMATYZATORY
KLIMATYZATORY
KLIMATYZATORY
POMPY CIEPŁA
REKUPERATORY
KLIMATYZATORY
KLIMATYZATORY
KLIMATYZATORY
KLIMATYZATORY

Prośba o pomoc dot. loklaizacji i doboru jednostek - duże przeszklenia, wysoki sufit

2 Odpowiedzi, 1555 Wyświetleń

WXR

  2023-10-22, 11:29:31
Nowy użytkownik
#1
Szanowni Forumowicze,

Pozwoliłem sobie założyć ten wątek w celu poznania opinii ekspertów / waszych co do doboru i lokalizacji jednostek.

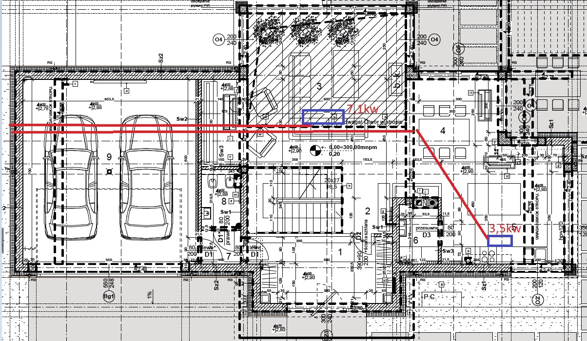
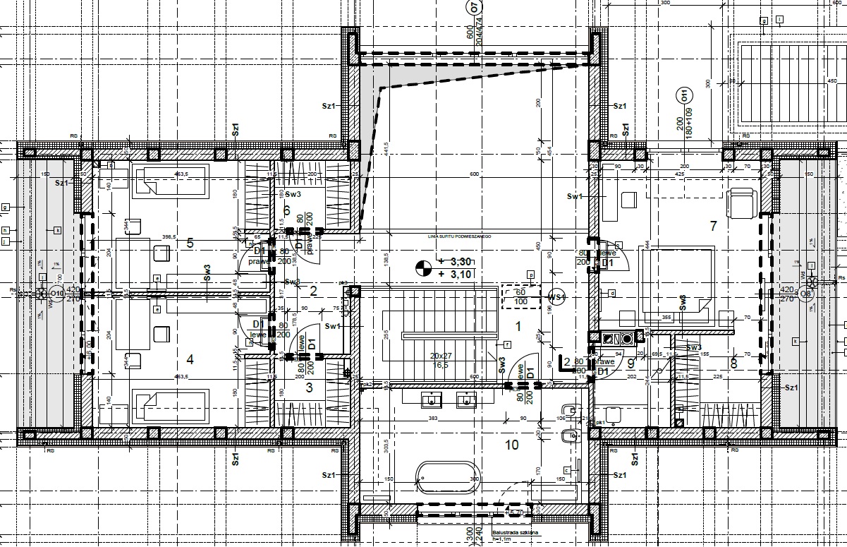
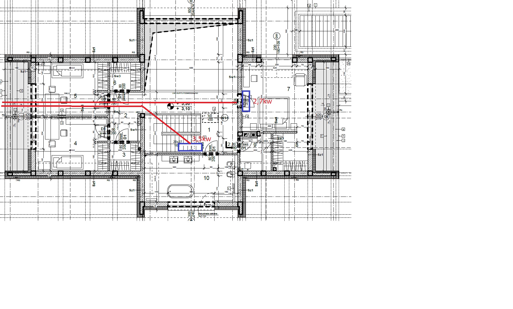
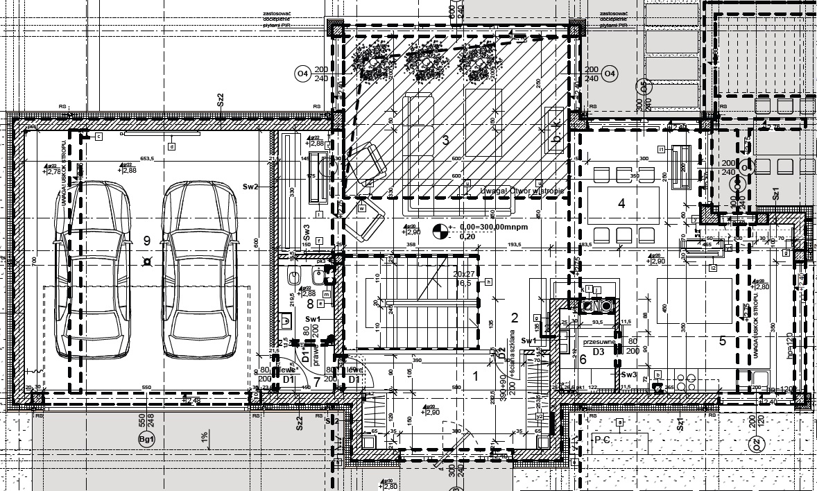
W załączniku rzuty wraz z wymiarami, 
  • ekspozycja południowa (góra rysunku to południe), niezacieniona (brak drzew etc.)
  • salon połączony z jadalnią, oraz kuchnią,
  • klatka schodowa oraz otwarta antresola
  • z dużą ilością przeszkleń
  • oknem trójkątnym w salonie (szerokość 6m, wys. ok 8m)
  • wysokim sufitem nad salonem (do trójkąta)
  • nad antresolą jest już sufit podwieszany (3,4m)
  • przedsionek otwarty

Powierzchnia oraz kubatura są duże, ekspozycja na południe również robi swoje.

Czy bylibyście tak uprzejmi podzielić się waszymi opiniami / radami gdzie najlepiej umieścić jednostki i o jakiej mocy, żeby było to optymalne?

W budynku będą żaluzje fasadowe, natomiast jest na wzniesieniu więc bywa wietrznie - mogą być dni kiedy będą schowane.

Z góry dziękuję i pozdrawiam,
Sławek


Załączone pliki Miniatury
       
(Ten post był ostatnio modyfikowany: 2023-10-22, 11:42:09 przez WXR.)
  • Odpowiedz

Tytanowy Janusz

  2023-10-22, 21:39:58
Zaawansowany użytkownik
#2
Zaproś doświadczonego instalatora, za dużo tu tego. Bardzo możliwe że potrzebujesz 2 urządzeń, może coś kasetonowego (jednostronne, okrągłe-dla estetyki nie biurowej) może da się gdzieś wpasować kanałówkę w zabudowę. a może znajdzie się miejsce na zwykłe ścienne. W dobie urządzeń inwertorowych nie musisz aptekarsko określać mocy urządzeń, przelicz kubaturę, dolicz do zwyczajowych 40W na 1m3 +50% i będzie ok przynajmniej dla klimatyzatora z rejonu największego nasłonecznienia. Klimatyzator ma być komfortowy nie hałasować i nie wiać na użytkowników... Tylko wizja lokalna.
  • Odpowiedz

WXR

  2023-10-23, 09:38:53
Nowy użytkownik
#3
Dziękuję za odpowiedź. Sęk w tym, że było dwóch instalatorów, do tego jeden znajomy - i każdy ma inną wersje. Projekt zakłada rozmieszczenie jednostek jak na w/w rysunkach rzutów (w pierwszym poście) - kasetonowe jednostronne Samsung moce odpowiednio 5,25 2,66 i 2,08 KW, brak urządzenia do schładzania antresoli.



Pierwszy na projekcie nie zostawia suchej nitki twierdząc, że klimatyzator we wnęce telewizyjnej mija się z celem, proponuje jednostkę po prawej stronie nad oknem w "dziubku", tak aby strumień powietrza odcinał szyby. Dalej zostawić jak jest, ew. zastanowić się nad chłodzeniem antresoli, ale tam będzie się musiał klimatyzator napracować.



Drugi proponuje jeden duży kasetonowy klimatyzator 4 kierunkowy (np. 12KW) nad antresolą, bo zimne powietrze schodzi na dół



Znajomy, który się też klimatyzacją zajmuje - 4 kierunkowy pod antresolą (lub na jej ścianie) i drugi na antresoli i trzeci między kuchnią i jadalnią.



Ze swojej strony zbierając to razem (myślałem żeby iść w urządzenia GREE, modele CLIVIA bo da się je łatwo podpiąć po Home Assistant) jak na załączonych rysunkach: (1. jeden na ścianie łazienki, na antresoli; 2. drugi na boku (ścianie) stropu antresoli; 3. kuchnia / jadalnia)



Jakieś rady / przemyślenia?...




Załączone pliki Miniatury
       
(Ten post był ostatnio modyfikowany: 2023-10-23, 09:48:15 przez WXR.)
  • Odpowiedz

  • Pokaż wersję do druku


Użytkownicy przeglądający ten wątek: 1 gości

Serwis ma na celu zgromadzenie w jednym miejscu firm oraz organizacji z branży HVACR, działających na rynku zarówno polskim jak i poza granicami kraju. Naszą siłą są wyłącznie tematy związane z branżą HVACR oraz unikalna społeczność użytkowników.
NEWSLETTER
Informacje O nas Kontakt Regulamin Reklama Polityka prywatności
Kategorie Artykuły Aktualności Produkty
Działy Klimatyzacja Wentylacja Chłodnictwo Auto - klimatyzacja
Nasze Portale ogrzewnictwo.pl pasywny-budynek.pl
Copyright © 2005-2023 termoclima Sp. z o.o Wszystkie prawa zastrzeżone.
Tryb normalny
Tryb drzewa